Thiết kế kiến trúc gia đình Anh Niềm- chị Hoa ( Tân Bình )

Lấy Uy Tín làm nền tảng - Lấy Chất Lượng để cạnh tranh - Lấy sự bằng lòng để làm động lực phát triển

hotline: 0977923779

Thiết kế kiến trúc gia đình Anh Niềm- chị Hoa ( Tân Bình )
02/12/2025 03:27 PM 70 Lượt xem

    Triển khai full Thiết kế công trình nhà ở gia đình chuẩn bị công tác động thổ khởi công ngày 10/2 âm lịch

    ✧✧Thông Tin Dự Án✧✧

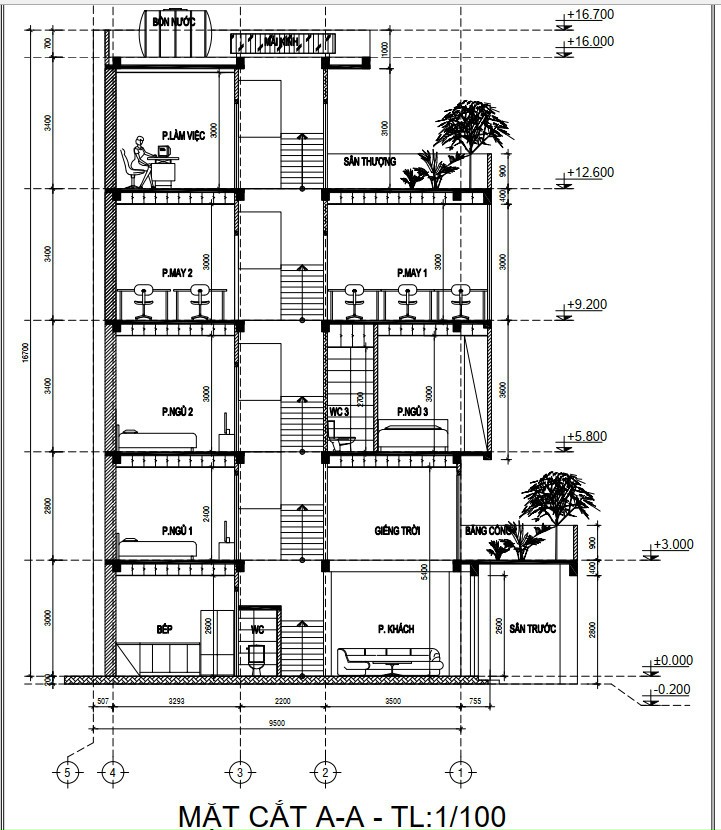
    Khách hàng: Gia đình Anh Niềm- chị Hoa

    • Diện tích sàn: 64m2
    • Thiết kế: 1 trệt 4 lầu.
    • Địa chỉ: Tân Bình - TP HCM.
    • Tiến độ: 6 tháng. Công ty chúng tôi xin chân thành cảm ơn.

    ✧✧Hình ảnh thiết kế✧✧

    Công ty chúng tôi xin chân thành cảm ơn.
    ✨ Tư vấn chi tiết về dịch vụ, giá cả phù hợp với từng nhu cầu của khách hàng.
    ✨ Chúng tôi trực tiếp thi công và cam kết không bán thầu.
    ✨ Cam kết không phát sinh chi phí.
    ✨ Cam kết vật tư đúng với hợp đồng.
    ✨ Cam kết thi công đảm bảo đúng tiến độ, chất lượng tốt nhất với giá cả hợp lý.
    ✨ Miễn phí thiết kế 2D, 3D;
    ✨ Hỗ trợ bản vẽ xin phép xây dựng.
    ✨ Bảo hành kết cấu 5 năm.